Banco Galicia

Identidad. Branding. Estrategia. Packaging. Espacios. Señalización.

Si algo tenemos claro es que, más allá del éxito comercial y simbólico de una marca, eso no la hace eterna. Menos aún su rostro. Banco Galicia había dejado de sorprender como marca y como territorio; toda su seducción estaba en las acciones persuasivas de la publicidad y en su experiencia. Para una marca moderna y líder, eso no es suficiente.

Planteamos un plan de diseño que consolidara una visión más cercana, robusta y actual. Definimos que el Banco Galicia debía hablar con altura y vigor al mismo tiempo que con sensibilidad y transparencia. En ese sentido, en un gesto innovativo explícito, eliminamos la palabra “Banco” del nombre de la marca para sumar potencia.

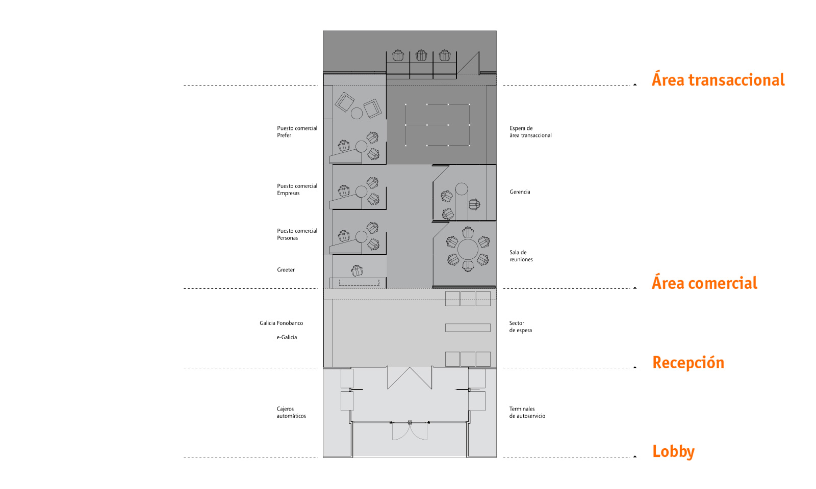
Diseñar el interior de una sucursal implica diseñar una vivencia, un itinerario, una sucesión de experiencias perceptivas que conforman una aún mayor: la experiencia de marca. Construir un entorno estimulante para los empleados y que, al mismo tiempo, comprende las necesidades, preferencias, hábitos y aspiraciones del cliente fue un componente esencial del trabajo.

Proyecto relacionado Proyectos relacionados